| 物件No |
3034 |
情報更新日 |
2015/9/9 |
| 物件所在地 |
熊本市南区城南町千町 |
土地面積 |
2589.26u(783.25坪) |
| 価格 |
4,000万円 |
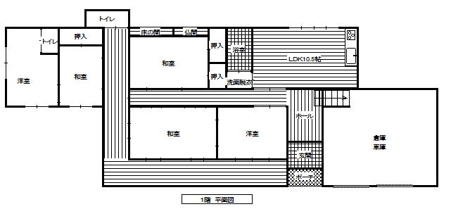
間取り |
7LDK |
|
| 物件種目 |
中古戸建て |
交通 |
千原入口バス停 徒歩9分 |
| 建物構造 |
木造セメント瓦葺き |
規模 |
2階建て |
| 築年月 |
昭和42年1月 |
建物面積 |
214.77u(64.96坪) |
| 地目 |
宅地 |
土地権利 |
所有権 |
| 都市計画 |
調整 |
用途地域 |
|
| 建ぺい率 |
40% |
容積率 |
80% |
| 他の法令上の制限 |
集落内開発地域 |
| 地勢 |
平坦 |
環境 |
住宅地 |
| 現況 |
上物有り |
引渡し |
即時 |
| 設備 |
電気・側溝・プロパンガス |
| 接道幅員(1) |
南側 4m 公道 接面68m |
接道幅員(2) |
|
| 角地 |
|
接道位置指定 |
東側・有り(55.6u) |
| 備考1 |
杉上小学校まで2.1Km |
| 備考2 |
クレア嘉島店まで1.8q |
| 備考3 |
広々とした敷地で、家庭菜園が十分に楽しめます |
| 図面 |
  |
| 現況写真 |
|
|