| 物件No |
3033 |
情報更新日 |
2015/5/15 |
| 物件所在地 |
熊本市南区城南町千町字めど町 |
土地面積 |
1373.95u(415.61坪) |
| 価格 |
万円 |
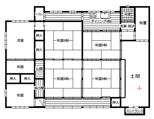
間取り |
7DK |
|
| 物件種目 |
中古売り家 |
交通 |
千原入口バス停 徒歩5分 |
| 建物構造 |
木造瓦葺き |
規模 |
平屋建て |
| 築年月 |
明治40年 |
建物面積 |
150.41u(45.5坪) |
| 地目 |
宅地 |
土地権利 |
所有権 |
| 都市計画 |
調整区域 集落内開発地域 |
用途地域 |
|
| 建ぺい率 |
40% |
容積率 |
80% |
| 他の法令上の制限 |
|
| 地勢 |
平坦 |
環境 |
住宅地 |
| 現況 |
上物有り |
引渡し |
相談 |
| 設備 |
電気・側溝・プロパンガス・浄化槽 |
| 接道幅員(1) |
北側 4m 公道 接面10 m |
接道幅員(2) |
|
| 角地 |
|
接道位置指定 |
無し |
| 備考1 |
杉上小学校まで1.2q |
| 備考2 |
嘉島クレアまで1.5Km 明治40年築の古民家 |
| 備考3 |
宅地382坪 畑33坪 十分に家庭菜園が楽しめます |
| 間取り |
 |
| 現況写真 |
 |
|